Dom z basenem | Kino domowe | Dla rodziny

Mieszkanie na sprzedaż
4 495 000,00 PLN , Pow. 243,07 m2
Drukuj ofertę
Drukuj ofertę
Typ nieruchomości:
Mieszkanie
Powierzchnia:
243,07 m2
Typ transakcji:
sprzedaż
Liczba pokoi:
6
Lokalizacja:
Warszawa Wilanów Zawady , Syta
Rok budowy:
2024
Piętro:
0 na 1
Numer oferty:
34964534590
Powierzchnia działki:
420 m2
Cena za m2:
18 492,62 PLN
PIĘKNY I NOWOCZESNY DOM PREMIUM ALTERNATYWA DLA DUŻEGO APARTAMENTU

Kino | Basen | 4 miejsca postojowe | Wysoki standard wykończenia I Zakup bez PCC I Pełne wyposażenie zawarte w cenie 

Nowy dom w wysokim standardzie z 2024 roku, zlokalizowany w willowej części dzielnicy Wilanów (Stare Zawady), w kameralnej zabudowie szeregowej 9 domów. Wygodny, w pełni wyposażony z ogródkiem i podgrzewanym basenem. 4 miejsca parkingowe, 2 w garażu i 2 na podjeździe.  

*****

ROZKŁAD POMIESZCZEŃ:

Dom składa się z: 

Parter:
* Salon o wysokości 3,2m połączony z dużą kuchnią (50 m2) i kuchnią roboczą (8 m2),
* jadalnia z włoskim stołem (blat ze spieków kwarcowych), (12 m2),
* hol (14 m2),
* WC z prysznicem (3 m2).

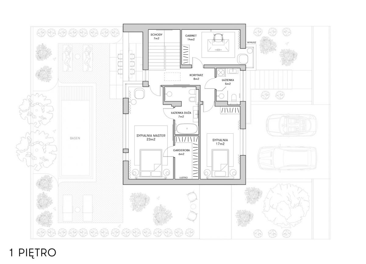
Pietro I:
* Duża sypialnia master (23 m2) połączona z garderobą (6m2) i osobną łazienką (7 m2),
* sypialnia dziecięca z dużą szafą (17 m2),
* sypialnia/gabinet (14 m2),
* łazienka z prysznicem i pralnią (5 m2),
* hol (15 m2).

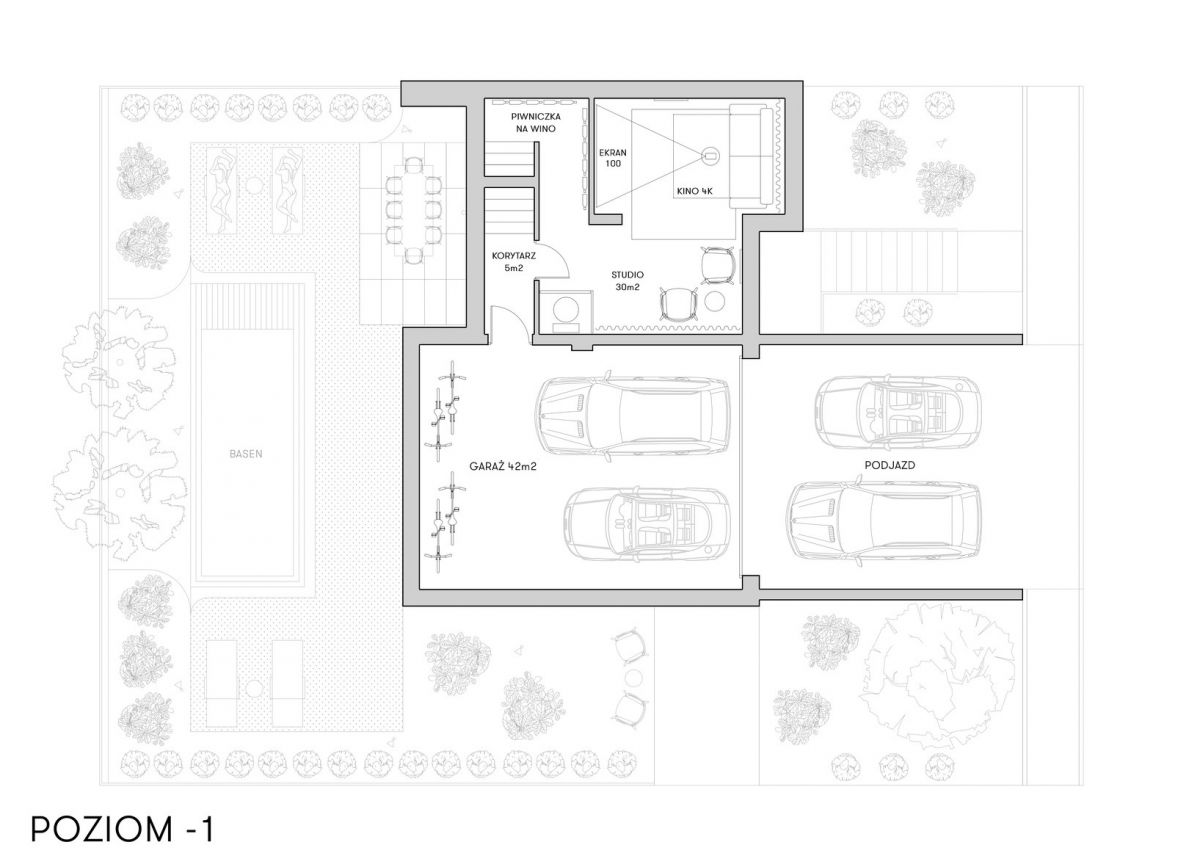
Poziom -1:
* Wielofunkcyjne studio (kino, fitness, pokój gościnny) z rzutnikiem 4K oraz sprzętem audio firmy DENON (30m2), 
* hol (5 m2),
* garaż (4m2) z możliwością wydzielenia wewnętrznej strefy SPA.

Poddasze nieużytkowe: strych (88m2) dostępny poprzez składane schody strychowe z możliwością ocieplenia i własnej aranżacji.


STANDARD:

Wnętrze domu zostało zaprojektowane przez renomowaną pracownię architektoniczną z dbałością o każdy szczegół. Otwarta kuchnia wyposażona została w pełną zabudowę wraz z nowoczesnym bezdotykowym pochłaniaczem oraz stalową baterią kuchenną Villeroy & Boch, ogromną wyspą kuchenną (2,5m) oraz z najwyższej jakości sprzętem firmy MIELE. Dodatkowym atutem są piękne blaty wykonane z włoskich spieków kwarcowych oraz markowa lodówka firmy LIEBHERR. W salonie znajduje się najwyższej klasy jasny i wygodny narożnik firmy OLTA, centralny kominek wraz panoramicznym telewizorem (75 cali) oraz markowy sprzęt audio firmy DENON. W projekcie zastosowano najwyższej klasy meble i elementy wyposażenia takich światowych marek jak m.in. EICHHOLTZ, Miele, VITRA, Villeroy & Boch, Liebherr, Olta, TRES Griferia 1975, Denon.

Nowoczesna i funkcjonalna łazienka master wyposażona została w szeroką umywalkę (120 cm) wykonaną z naturalnego lanego marmuru z ukrytym odpływem oraz duży prysznic typu walk-in z wbudowaną baterią prysznicową i deszczownicą. Dodatkowym atutem są wielkoformatowe włoskie spieki kwarcowe 120x120cm z eleganckim rysunkiem kamienia, markowa armatura Villeroy&Boch oraz hiszpańskie baterie TRES Griferia 1975. Dom jest bardzo jasny i przestronny a jego atutem są duże okna doskonale doświetlające wnętrze. Wysokiej jakości materiały, dębowe podłogi oraz ściany wykończone drewnem sprawiają, że wnętrze nieruchomości jest bardzo eleganckie i ponadczasowe.


LOKALIZACJA:

Dom znajduje się w dzielnicy Wilanów Stare Zawady. W najbliższej okolicy znajduje się wiele sklepów i restauracji a także piękne nadwiślańskie plaże, liczne korty tenisowe, place zabaw oraz pole golfowe, basen, siłownia, szkoła podstawowa jak i wiele szkół międzynarodowych. Nieruchomość położona przy ulicy Sytej, w bardzo dobrze skomunikowanym miejscu.


INFORMACJE DODATKOWE:

* Garaż na 2 auta.
* Wygodny podjazd z możliwością zaparkowania kolejnych 2 aut.
* Ogródek z granitowym tarasem oraz podgrzewanym i podświetlanym basenem.
* Dodatkowe udogodnienia: klimatyzacja, alarm, szybki internet, automatyczne podlewanie.
* 8 miejsc do parkowania na terenie wspólnym osiedla.
* Cena brutto z VAT, kupujący nie płaci PCC.
* Pełne wyposażenie zawarte w cenie 
* Powierzchnia domu według pomiaru geodety wynosi 243 m2, powierzchnia w KW nie uwzględnia metrażu klatek schodowych. 


Serdecznie zapraszam na prezentację!
Nieprawidłowy adres E-mail